Katalog Architectural Applications facebook twitter youtube

Curtain Wall Alumunium - Aluminium Curtain Wall Group 4132

Mengerjakan cepat curtain wall alumunium khusus proyek perkantoran / gedung untuk anda.

Katalog Curtain Wall Alumunium / Aluminium Curtain Wall Group 4132

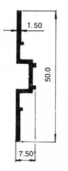
alumunium Curtain Wall-Curtain Wall Group 4132

Die NoThick (mm) W (Kg/m) Per (mm)
4132 (Back Mullion) 1.20 0.693 192.0

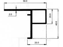
alumunium Curtain Wall-Curtain Wall Group 4132

Die NoThick (mm) W (Kg/m) Per (mm)
4131 (Back Mullion) 2.50 1.143 338.48

alumunium Curtain Wall-Curtain Wall Group 4132

Die NoThick (mm) W (Kg/m) Per (mm)
4133 (Back Mullion) 3.0 0.205 127.907

alumunium Curtain Wall-Curtain Wall Group 4132

Die NoThick (mm) W (Kg/m) Per (mm)
4134 (Back Mullion) 1.0 0.278 204.069

alumunium Curtain Wall-Curtain Wall Group 4132

Die NoThick (mm) W (Kg/m) Per (mm)
4138 (Back Mullion) 2.0 0.614 208.0

alumunium Curtain Wall-Curtain Wall Group 4132

Die NoThick (mm) W (Kg/m) Per (mm)
4135 (Casement Window) 1.20 0.848 315.825

alumunium Curtain Wall-Curtain Wall Group 4132

Die NoThick (mm) W (Kg/m) Per (mm)
4142 (Casement Window) 1.50 0.145 72.039

alumunium Curtain Wall-Curtain Wall Group 4132

Die NoThick (mm) W (Kg/m) Per (mm)
4136 (Casement Window) 4.0 0.860 168.168

alumunium Curtain Wall-Curtain Wall Group 4132

Die NoThick (mm) W (Kg/m) Per (mm)
4137 (Casement Window) 1.20 0.645 243.961

alumunium Curtain Wall-Curtain Wall Group 4132

Die NoThick (mm) W (Kg/m) Per (mm)
4130 (Casement Window) 1.50 0.356 178.0

alumunium Curtain Wall-Curtain Wall Group 4132

Die NoThick (mm) W (Kg/m) Per (mm)
4141 (Casement Window) 2.0 0.763 216.447

alumunium Curtain Wall-Curtain Wall Group 4132

Die NoThick (mm) W (Kg/m) Per (mm)
4146 (Bending Transom) 1.50 0.229 131.855

alumunium Curtain Wall-Curtain Wall Group 4132

Die NoThick (mm) W (Kg/m) Per (mm)
4147 (Bending Transom) 1.20 0.559 274.45

alumunium Curtain Wall-Curtain Wall Group 4132

Die NoThick (mm) W (Kg/m) Per (mm)
4148 (Bending Transom) 1.20 0.205 127.907

alumunium Curtain Wall-Curtain Wall Group 4132

Die NoThick (mm) W (Kg/m) Per (mm)
4454 (Bending Transom) 2.0 0.953 186.062

Latest news

  • bootstrap business template
    Aluminum Boats Can Save You Money In The Long Run
    "ToIn the past few years, more and more recreational boat owners have come to discover the joys and savings of owning aluminum boats. Commercial boat owners have been aware of these benefits for many years and, because of their outstanding qualities, aluminum boats make more sense for the private boat ... More"
    Author : Jennifer Bailey
Quick Links
Home
About us
Contact Us
Article
Download
Sitemap
Find us on

Visit us

Jaya Mataram
Jl. Y No.9A Cipinang, Jakarta,
Indonesia - 13420
Phone:   021 8591 4040
Fax:   021 8591 4141
Fast CALL:   0853 7000 0700
Sabtu Minggu CALL:   0853 7000 0700
Email: info@alumunium.co.id
Link: www.alumunium.co.id

Developed By: alumunium.co.id © 2026, allright reserved

Main Menu
Quick Link
General Alumunium
Architectural Alumunium