Katalog Architectural Applications facebook twitter youtube

Kusen Alumunium - Aluminium Shopfront 1000

Kusen Alumunium / Aluminium Shopfront kini banyak dilirik orang karena dinilai menguntungkan. Dilihat dari segi estetis kusen aluminium mampu meningkatkan keindahan atau penampilan suatu rumah / gedung.

Secara teknis, kusen alumunium memiliki variasi yang sangat menarik. Untuk perumahan (Residential) sangat cocok bagi pecinta gaya minimalis. Sedangkan secara ekonomis, kusen alumunium lebih awet bahkan hingga puluhan tahun. Tidak khawatir masalah rayap, dan tidak pula memerlukan perawatan khusus.

Untuk memenuhi kebutuhan perumahan dan gedung-gedung kantor yang meningkat di Indonesia, maka Jaya Mataram meningkatkan pula pelayanan terhadap pesanan kusen-kusen dan kisi-kisi alumunium untuk pintu dan jendela, yang kami kerjakan sesuai keinginan anda :-)

Spesialis kami mengerjakan kusen alumunium 3", 4", 750, 1000 (Flush Glazing), 1400, 400, 600, 800, dengan berbagai thickness, mulai dari 1.15mm - 2.00 mm.

Katalog Kusen Alumunium / Aluminium Shopfront 1000

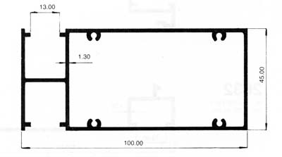
alumunium Shopfront-1000

Die NoThick (mm) W (Kg/m) Per (mm)
2635 1.30 0.696 380.60

alumunium Shopfront-1000

Die NoThick (mm) W (Kg/m) Per (mm)
2636 1.30 0.691 374.12

alumunium Shopfront-1000

Die NoThick (mm) W (Kg/m) Per (mm)
2630 1.30 1.305 391.73

alumunium Shopfront-1000

Die NoThick (mm) W (Kg/m) Per (mm)
2629 1.30 0.159 88.733

alumunium Shopfront-1000

Die NoThick (mm) W (Kg/m) Per (mm)
2633 1.30 0.812 450.47

alumunium Shopfront-1000

Die NoThick (mm) W (Kg/m) Per (mm)
2631 1.30 0.706 390.47

alumunium Shopfront-1000

Die NoThick (mm) W (Kg/m) Per (mm)
2632 1.30 0.605 337.34

alumunium Shopfront-1000

Die NoThick (mm) W (Kg/m) Per (mm)
2575 1.30 0.817 461.01

alumunium Shopfront-1000

Die NoThick (mm) W (Kg/m) Per (mm)
2576 1.30 0.87 487.33

alumunium Shopfront-1000

Die NoThick (mm) W (Kg/m) Per (mm)
2634 1.30 1.243 396.48

Latest news

  • bootstrap business template
    Aluminum Boats Can Save You Money In The Long Run
    "ToIn the past few years, more and more recreational boat owners have come to discover the joys and savings of owning aluminum boats. Commercial boat owners have been aware of these benefits for many years and, because of their outstanding qualities, aluminum boats make more sense for the private boat ... More"
    Author : Jennifer Bailey
Quick Links
Home
About us
Contact Us
Article
Download
Sitemap
Find us on

Visit us

Jaya Mataram
Jl. Y No.9A Cipinang, Jakarta,
Indonesia - 13420
Phone:   021 8591 4040
Fax:   021 8591 4141
Fast CALL:   0853 7000 0700
Sabtu Minggu CALL:   0853 7000 0700
Email: info@alumunium.co.id
Link: www.alumunium.co.id

Developed By: alumunium.co.id © 2026, allright reserved

Main Menu
Quick Link
General Alumunium
Architectural Alumunium