Katalog Architectural Applications facebook twitter youtube

Jendela Alumunium - Aluminium Series 50 Window

Jendela alumunium dipilih banyak orang karena kekuatan dan ketahanan jendela alumunium hingga puluhan tahun. Jendela yang terbuat dari alumunium selain tidak memerlukan keahlian khusus untuk membersihkannya, namun juga memiliki banyak variasi dan bagus dipandang mata.

Jaya Mataram mengerjakan plus memasang apapun jenis jendela alumunium untuk anda. Tersedia berbagai macam variasi jendela alumunium yang pernah kami kerjakan, seperti :

  • Jendela Kaca Mati - Fixed Window
  • Jendela Engsel Atas - Top Hung Window
  • Jendela Engsel Samping - Side Hung Window
  • Jendela Engsel Bawah - Bottom Hung Window
  • Jendela Tuas Layang - Projected Window
  • Jendela Polos Datar Sentris - Horizontal Centre Pivoted Window
  • Jendela Tegak Putar Penuh - Vertical Centre Pivoted Window
  • Jendela Poros Tegak - Vertical Off Centre Pivoted Window
  • Jendela Geser Datar - Horizontal Sliding Window
  • Jendela Geser Tegak - Vertical Sliding Window

Hubungi Jaya Mataram segera untuk mendapatkan jendela alumunium berkualitas yang anda inginkan. Kami bahkan juga membuat jendela Kapal selam, kereta api, dan lain-lain.

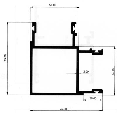
Katalog Jendela Alumunium / Aluminium Series 50 Window

alumunium Window-Series 50 Window

Die NoThick (mm) W (Kg/m) Per (mm)
1971 (Fix Light Single Glass) 1.30 0.327 207.10
1971 (Casement Window) 1.30 0.327 207.10
0971 (Pivoted Window) 1.30 0.327 207.10

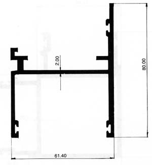
alumunium Window-Series 50 Window

Die NoThick (mm) W (Kg/m) Per (mm)
1967 (Fix Light Single Glass) 1.80 0.623 246.46
1967 (Fix Light Double Glass) 1.80 0.623 246.46

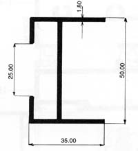
alumunium Window-Series 50 Window

Die NoThick (mm) W (Kg/m) Per (mm)
1969 (Fix Light Single Glass) 281.4 0.738 281.47
1969 1.80 0.738 281.47

alumunium Window-Series 50 Window

Die NoThick (mm) W (Kg/m) Per (mm)
1975 (Fix Light Single Glass) 1.80 1.476 367.86
1975 (Fix Light Double Glass) 1.80 1.476 367.86

alumunium Window-Series 50 Window

Die NoThick (mm) W (Kg/m) Per (mm)
1963 (Fix Light Single Glass) 1.80 0.196 86.05

alumunium Window-Series 50 Window

Die NoThick (mm) W (Kg/m) Per (mm)
1956 (Fix Light Single Glass) 1.80 0.613 239.79

alumunium Window-Series 50 Window

Die NoThick (mm) W (Kg/m) Per (mm)
1957 (Fix Light Single Glass) 1.80 0.882 319.57

alumunium Window-Series 50 Window

Die NoThick (mm) W (Kg/m) Per (mm)
1965 (Fix Light Double Glass) 1.30 0.307 154.15
1959 (Pivoted Window)
(Double Glass)
1.30 0.307 154.15

alumunium Window-Series 50 Window

Die NoThick (mm) W (Kg/m) Per (mm)
1978 (Fix Light Double Glass) 1.50 0.667 235.84
1978 (Pivoted Window)
(Double Glass)
1.50 0.667 235.84

alumunium Window-Series 50 Window

Die NoThick (mm) W (Kg/m) Per (mm)
1969 (Fix Light Single Glass) 281.4 0.738 281.47
1969 1.80 0.738 281.47

alumunium Window-Series 50 Window

Die NoThick (mm) W (Kg/m) Per (mm)
1967 (Fix Light Single Glass) 1.80 0.623 246.46
1967 (Fix Light Double Glass) 1.80 0.623 246.46

alumunium Window-Series 50 Window

Die NoThick (mm) W (Kg/m) Per (mm)
1975 (Fix Light Single Glass) 1.80 1.476 367.86
1975 (Fix Light Double Glass) 1.80 1.476 367.86

alumunium Window-Series 50 Window

Die NoThick (mm) W (Kg/m) Per (mm)
1964 (Casement Window) 1.80 0.845 333.27

alumunium Window-Series 50 Window

Die NoThick (mm) W (Kg/m) Per (mm)
1976 (Casement Window) 1.80 1.040 297.97

alumunium Window-Series 50 Window

Die NoThick (mm) W (Kg/m) Per (mm)
1959 (Casement Window) 12.00 3.120 293.89
1959 (Pivoted Window) 12.00 3.120 293.89
1959 (Pivoted Window)
(Double Glass)
12.00 3.120 293.89

alumunium Window-Series 50 Window

Die NoThick (mm) W (Kg/m) Per (mm)
1971 (Fix Light Single Glass) 1.30 0.327 207.10
1971 (Casement Window) 1.30 0.327 207.10
0971 (Pivoted Window) 1.30 0.327 207.10

alumunium Window-Series 50 Window

Die NoThick (mm) W (Kg/m) Per (mm)
1971 (Fix Light Single Glass) 1.30 0.327 207.10
1971 (Casement Window) 1.30 0.327 207.10
0971 (Pivoted Window) 1.30 0.327 207.10

alumunium Window-Series 50 Window

Die NoThick (mm) W (Kg/m) Per (mm)
1977 (Pivoted Window) 2.00 0.995 241.36
1977 (Pivoted Window)
(Double Glass)
2.00 0.995 241.36

alumunium Window-Series 50 Window

Die NoThick (mm) W (Kg/m) Per (mm)
1968 (Pivoted Window) 1.80 0.670 277.40
1968 (Pivoted Window)
(Double Glass)
1.80 0.670 277.40

alumunium Window-Series 50 Window

Die NoThick (mm) W (Kg/m) Per (mm)
1980 (Pivoted Window) 1.80 0.768 312.01
1980 (Pivoted Window)
(Double Glass)
1.80 0.768 312.01

alumunium Window-Series 50 Window

Die NoThick (mm) W (Kg/m) Per (mm)
1959 (Casement Window) 12.00 3.120 293.89
1959 (Pivoted Window) 12.00 3.120 293.89
1959 (Pivoted Window)
(Double Glass)
12.00 3.120 293.89

alumunium Window-Series 50 Window

Die NoThick (mm) W (Kg/m) Per (mm)
1965 (Fix Light Double Glass) 1.30 0.307 154.15
1959 (Pivoted Window)
(Double Glass)
1.30 0.307 154.15

alumunium Window-Series 50 Window

Die NoThick (mm) W (Kg/m) Per (mm)
1978 (Fix Light Double Glass) 1.50 0.667 235.84
1978 (Pivoted Window)
(Double Glass)
1.50 0.667 235.84

alumunium Window-Series 50 Window

Die NoThick (mm) W (Kg/m) Per (mm)
1977 (Pivoted Window) 2.00 0.995 241.36
1977 (Pivoted Window)
(Double Glass)
2.00 0.995 241.36

alumunium Window-Series 50 Window

Die NoThick (mm) W (Kg/m) Per (mm)
1968 (Pivoted Window) 1.80 0.670 277.40
1968 (Pivoted Window)
(Double Glass)
1.80 0.670 277.40

alumunium Window-Series 50 Window

Die NoThick (mm) W (Kg/m) Per (mm)
1980 (Pivoted Window) 1.80 0.768 312.01
1980 (Pivoted Window)
(Double Glass)
1.80 0.768 312.01

alumunium Window-Series 50 Window

Die NoThick (mm) W (Kg/m) Per (mm)
1959 (Casement Window) 12.00 3.120 293.89
1959 (Pivoted Window) 12.00 3.120 293.89
1959 (Pivoted Window)
(Double Glass)
12.00 3.120 293.89

alumunium Window-Series 50 Window

Die NoThick (mm) W (Kg/m) Per (mm)
1961 (Subtheads & Subsills) 2.00 0.711 240.37

alumunium Window-Series 50 Window

Die NoThick (mm) W (Kg/m) Per (mm)
1962 (Subtheads & Subsills) 4.00 0.426 103.276

alumunium Window-Series 50 Window

Die NoThick (mm) W (Kg/m) Per (mm)
1960 (Subtheads & Subsills) 2.00 0.878 297.21

alumunium Window-Series 50 Window

Die NoThick (mm) W (Kg/m) Per (mm)
1966 (Subtheads & Subsills) 2.00 0.927 336.12

alumunium Window-Series 50 Window

Die NoThick (mm) W (Kg/m) Per (mm)
1955 (Vertical & Horizontal Couplers) 4.00 3.165 423.31

alumunium Window-Series 50 Window

Die NoThick (mm) W (Kg/m) Per (mm)
1970 (Vertical & Horizontal Couplers) 4.00 1.287 284.99

alumunium Window-Series 50 Window

Die NoThick (mm) W (Kg/m) Per (mm)
1954 (Vertical & Horizontal Couplers) 1.25 0.487 284.72

alumunium Window-Series 50 Window

Die NoThick (mm) W (Kg/m) Per (mm)
1953 (Vertical & Horizontal Couplers) 1.25 0.506 295.79

alumunium Window-Series 50 Window

Die NoThick (mm) W (Kg/m) Per (mm)
1972 (Horizontal Joint) 2.00 1.358 443.11

alumunium Window-Series 50 Window

Die NoThick (mm) W (Kg/m) Per (mm)
1973 (Horizontal Joint) 2.00 1.101 398.43

alumunium Window-Series 50 Window

Die NoThick (mm) W (Kg/m) Per (mm)
1974 2.00 1.796 449.014

Latest news

  • bootstrap business template
    Aluminum Boats Can Save You Money In The Long Run
    "ToIn the past few years, more and more recreational boat owners have come to discover the joys and savings of owning aluminum boats. Commercial boat owners have been aware of these benefits for many years and, because of their outstanding qualities, aluminum boats make more sense for the private boat ... More"
    Author : Jennifer Bailey
Quick Links
Home
About us
Contact Us
Article
Download
Sitemap
Find us on

Visit us

Jaya Mataram
Jl. Y No.9A Cipinang, Jakarta,
Indonesia - 13420
Phone:   021 8591 4040
Fax:   021 8591 4141
Fast CALL:   0853 7000 0700
Sabtu Minggu CALL:   0853 7000 0700
Email: info@alumunium.co.id
Link: www.alumunium.co.id

Developed By: alumunium.co.id © 2026, allright reserved

Main Menu
Quick Link
General Alumunium
Architectural Alumunium