Katalog Architectural Applications facebook twitter youtube

Jendela Alumunium - Aluminium Sliding Window

Jendela alumunium dipilih banyak orang karena kekuatan dan ketahanan jendela alumunium hingga puluhan tahun. Jendela yang terbuat dari alumunium selain tidak memerlukan keahlian khusus untuk membersihkannya, namun juga memiliki banyak variasi dan bagus dipandang mata.

Jaya Mataram mengerjakan plus memasang apapun jenis jendela alumunium untuk anda. Tersedia berbagai macam variasi jendela alumunium yang pernah kami kerjakan, seperti :

  • Jendela Kaca Mati - Fixed Window
  • Jendela Engsel Atas - Top Hung Window
  • Jendela Engsel Samping - Side Hung Window
  • Jendela Engsel Bawah - Bottom Hung Window
  • Jendela Tuas Layang - Projected Window
  • Jendela Polos Datar Sentris - Horizontal Centre Pivoted Window
  • Jendela Tegak Putar Penuh - Vertical Centre Pivoted Window
  • Jendela Poros Tegak - Vertical Off Centre Pivoted Window
  • Jendela Geser Datar - Horizontal Sliding Window
  • Jendela Geser Tegak - Vertical Sliding Window

Hubungi Jaya Mataram segera untuk mendapatkan jendela alumunium berkualitas yang anda inginkan. Kami bahkan juga membuat jendela Kapal selam, kereta api, dan lain-lain.

Katalog Jendela Alumunium / Aluminium Sliding Window

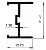
alumunium Window-Sliding Window

Die NoThick (mm) W (Kg/m) Per (mm)
1145 (Group 1447) 1.30 0.706 387.54

alumunium Window-Sliding Window

Die NoThick (mm) W (Kg/m) Per (mm)
1448 (Group 1447) 1.30 0.398 200.46

alumunium Window-Sliding Window

Die NoThick (mm) W (Kg/m) Per (mm)
1444 (Group 1447) 1.30 0.634 315.31

alumunium Window-Sliding Window

Die NoThick (mm) W (Kg/m) Per (mm)
1484 (Group 1447) 1.30 0.426 185.43

alumunium Window-Sliding Window

Die NoThick (mm) W (Kg/m) Per (mm)
1447 (Group 1447) 1.30 0.535 307.87

alumunium Window-Sliding Window

Die NoThick (mm) W (Kg/m) Per (mm)
1446 (Group 1447) 1.30 0.512 279.13

alumunium Window-Sliding Window

Die NoThick (mm) W (Kg/m) Per (mm)
1450 (Group 1447) 1.30 0.505 285.85

alumunium Window-Sliding Window

Die NoThick (mm) W (Kg/m) Per (mm)
1449 (Group 1447) 1.30 0.429 245.60

alumunium Window-Sliding Window

Die NoThick (mm) W (Kg/m) Per (mm)
1451 (Group 1447) 1.30 0.284 162.34

alumunium Window-Sliding Window

Die NoThick (mm) W (Kg/m) Per (mm)
2239 (Group 1447) 1.30 0.669 323.55

alumunium Window-Sliding Window

Die NoThick (mm) W (Kg/m) Per (mm)
2240 (Group 1447) 1.30 0.566 316.91

alumunium Window-Sliding Window

Die NoThick (mm) W (Kg/m) Per (mm)
2244 (Group 1447) 1.40 0.670 321.17

alumunium Window-Sliding Window

Die NoThick (mm) W (Kg/m) Per (mm)
2552 (Group 750) 1.50 0.769 355.96

alumunium Window-Sliding Window

Die NoThick (mm) W (Kg/m) Per (mm)
2557 (Group 750) 1.50 0.362 178.07

alumunium Window-Sliding Window

Die NoThick (mm) W (Kg/m) Per (mm)
2553 (Group 750) 1.50 0.75 343.13

alumunium Window-Sliding Window

Die NoThick (mm) W (Kg/m) Per (mm)
2556 (Group 750) 1.50 0.525 259.07

alumunium Window-Sliding Window

Die NoThick (mm) W (Kg/m) Per (mm)
2561 (Group 750) 1.50 0.725 361.14

alumunium Window-Sliding Window

Die NoThick (mm) W (Kg/m) Per (mm)
2559 (Group 750) 1.50 0.546 157.80

alumunium Window-Sliding Window

Die NoThick (mm) W (Kg/m) Per (mm)
2558 (Group 750) 1.50 0.605 213.28

alumunium Window-Sliding Window

Die NoThick (mm) W (Kg/m) Per (mm)
2555 (Group 750) 1.50 1.36 374.27

alumunium Window-Sliding Window

Die NoThick (mm) W (Kg/m) Per (mm)
2554 (Group 750) 1.50 1.557 412.34

alumunium Window-Sliding Window

Die NoThick (mm) W (Kg/m) Per (mm)
2549 (Group 750) 1.50 1.330 379.14

alumunium Window-Sliding Window

Die NoThick (mm) W (Kg/m) Per (mm)
2560 (Group 750) 1.50 0.368 186.49

alumunium Window-Sliding Window

Die NoThick (mm) W (Kg/m) Per (mm)
0496 (Group 0502) 1.60 0.924 414.30

alumunium Window-Sliding Window

Die NoThick (mm) W (Kg/m) Per (mm)
0501 (Group 0502) 1.60 0.478 200.40

alumunium Window-Sliding Window

Die NoThick (mm) W (Kg/m) Per (mm)
0497 (Group 0502) 1.60 0.734 308.92

alumunium Window-Sliding Window

Die NoThick (mm) W (Kg/m) Per (mm)
0502 (Group 0502) 1.60 0.656 291.32

alumunium Window-Sliding Window

Die NoThick (mm) W (Kg/m) Per (mm)
0498 (Group 0502) 1.60 0.638 299.80

alumunium Window-Sliding Window

Die NoThick (mm) W (Kg/m) Per (mm)
0500 (Group 0502) 1.60 0.629 221.88

alumunium Window-Sliding Window

Die NoThick (mm) W (Kg/m) Per (mm)
0499 (Group 0502) 1.60 0.506 161.52

alumunium Window-Sliding Window

Die NoThick (mm) W (Kg/m) Per (mm)
3312 (Group 1565 - 2922) 1.20 0.375 201.831

alumunium Window-Sliding Window

Die NoThick (mm) W (Kg/m) Per (mm)
3311 (Group 1565 - 2922) 1.20 0.270 168.461

alumunium Window-Sliding Window

Die NoThick (mm) W (Kg/m) Per (mm)
3251 (Group 1565 - 2922) 1.20 0.337 233.146

alumunium Window-Sliding Window

Die NoThick (mm) W (Kg/m) Per (mm)
3310 (Group 1565 - 2922) 1.20 0.407 250.887

alumunium Window-Sliding Window

Die NoThick (mm) W (Kg/m) Per (mm)
2240 (Group 1565 - 2922) 1.30 0.566 316.91

alumunium Window-Sliding Window

Die NoThick (mm) W (Kg/m) Per (mm)
3286 (Group 1565 - 2922) 1.20 0.436 316.954

alumunium Window-Sliding Window

Die NoThick (mm) W (Kg/m) Per (mm)
2922 (Group 2922) 1.20 1.017 296.78
1565 (Group 1565) 1.40 1.186 542.99

alumunium Window-Sliding Window

Die NoThick (mm) W (Kg/m) Per (mm)
2921 1.20 0.899 475.39
1564 (Group 1565) 1.40 0.986 445.62

alumunium Window-Sliding Window

Die NoThick (mm) W (Kg/m) Per (mm)
2923 (Group 2922) 1.20 0.586 355.15
1563 (Group 1565) 1.40 0.678 350.57

alumunium Window-Sliding Window

Die NoThick (mm) W (Kg/m) Per (mm)
2922 (Group 2922) 1.20 1.017 296.78
1565 (Group 1565) 1.40 1.186 542.99

alumunium Window-Sliding Window

Die NoThick (mm) W (Kg/m) Per (mm)
2921 1.20 0.899 475.39
1564 (Group 1565) 1.40 0.986 445.62

alumunium Window-Sliding Window

Die NoThick (mm) W (Kg/m) Per (mm)
2923 (Group 2922) 1.20 0.586 355.15
1563 (Group 1565) 1.40 0.678 350.57

Latest news

  • bootstrap business template
    Aluminum Boats Can Save You Money In The Long Run
    "ToIn the past few years, more and more recreational boat owners have come to discover the joys and savings of owning aluminum boats. Commercial boat owners have been aware of these benefits for many years and, because of their outstanding qualities, aluminum boats make more sense for the private boat ... More"
    Author : Jennifer Bailey
Quick Links
Home
About us
Contact Us
Article
Download
Sitemap
Find us on

Visit us

Jaya Mataram
Jl. Y No.9A Cipinang, Jakarta,
Indonesia - 13420
Phone:   021 8591 4040
Fax:   021 8591 4141
Fast CALL:   0853 7000 0700
Sabtu Minggu CALL:   0853 7000 0700
Email: info@alumunium.co.id
Link: www.alumunium.co.id

Developed By: alumunium.co.id © 2026, allright reserved

Main Menu
Quick Link
General Alumunium
Architectural Alumunium